| 微信 : Adelaidehelp 联系邮箱 : [email protected] 开启辅助访问
  • 本版置顶

      打印 上一主题 下一主题

      [房产投资] 买房求助 有经验的大侠们请进给兄弟点意见 跪谢

      [复制链接]
      跳转到指定楼层
      楼主
      游泳圈 发表于 17-8-2011 19:18:56 转发到朋友圈 删帖
      3656 7

      本内容为网友发布信息,仅代表原作者观点,不代表本平台立场。

      本帖最后由 游泳圈 于 2011-8-17 19:23 编辑

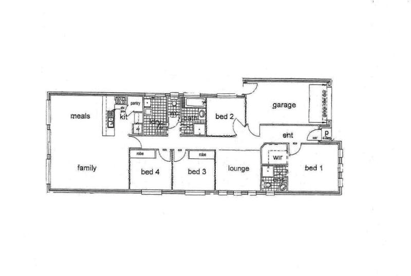
      小弟年初刚刚娶媳妇,最近在看房子,看上了一套在holden hill的房子,媳妇很满意,我也准备递offer了,跪求各位有经验的大侠给小弟点意见,感激不尽!!
      关键是,这个地区怎么样,我看了real estate的打分有86,中介也说附近在开发中,我转了转,确实很多地方都在盖房子。如果在这个地方的话,以后出租的话,是不是不太容易呢?我观察了下,两站地就是gilles plan的那个商场,出门5分钟左右到公车站。
      它的土地面积是302平米,不大。但是实际居住面积有150多,里面空间很大很宽敞,后院比较小,也很好打理。

      价钱在36万5左右。

      请各位能人给点意见!谢谢!!!!


      12.jpg (51.04 KB, 下载次数: 89)

      12.jpg

      1.jpg (75.47 KB, 下载次数: 82)

      1.jpg

      3.jpg (25.89 KB, 下载次数: 144)

      3.jpg

      4.jpg (23.88 KB, 下载次数: 105)

      4.jpg

      8.jpg (34.88 KB, 下载次数: 115)

      8.jpg

      9.jpg (28.73 KB, 下载次数: 136)

      9.jpg

      10.jpg (33.7 KB, 下载次数: 103)

      10.jpg

      14.gif (83.79 KB, 下载次数: 98)

      14.gif

      13.jpg (69.13 KB, 下载次数: 94)

      13.jpg

      BBS提醒: 请避免提前支付订金、押金等任何费用,请与对方当面沟通,确认资质并看清条款。谨防上当受骗。

      免责声明: 本网站所提供的信息,只供参考之用。本网站不保证信息的准确性、有效性、及时性和完整性。本网站及其雇员一概毋须以任何方式就任何信息传递或传送的失误、不准确或错误,对用户或任何其他人士负任何直接或间接责任。在法律允许的范围内,本网站在此声明,不承担用户或任何人士就使用或未能使用本网站所提供的信息或任何链接所引致的任何直接、间接、附带、从属、特殊、惩罚性或惩戒性的损害赔偿。

      收藏收藏 顶 踩
      回复

      使用道具 举报

      沙发
      ipod-touch4 发表于 17-8-2011 22:33:46
      房子蛮新的,最近很流行1块地分成两块那种的。沿线是obahn吧?那个位置租金大概每周120不成问题吧。价钱不太懂,比较下最近的成交价和自己的承受能力吧。
      回复 支持 反对

      使用道具 举报

      板凳
       楼主| 游泳圈 发表于 17-8-2011 22:43:09
      ipod-touch4 发表于 2011-8-17 22:33
      房子蛮新的,最近很流行1块地分成两块那种的。沿线是obahn吧?那个位置租金大概每周120不成问题吧。价钱不太 ...

      不在obahn沿线的 ,房子蛮新 ,但是地蛮小 ,挺纠结的。
      回复 支持 反对

      使用道具 举报

      地毯
      爱美食 发表于 18-8-2011 00:24:52
      我也觉得贵了点,,,,主要是地小啊,,..房子新旧其次,,,,,在那地方今年我看得那地方的一块地,,700左右也就23万,,当然房子老了,,,,但是地皮值钱阿,,,,就是按你价格卖地造新房子也合算阿,,,,但是看个人的,,我觉得现在是买卖房子的好时间,,,现在还有有很多房子的,,,,,,
      回复 支持 反对

      使用道具 举报

      5
      jed_fish 发表于 18-8-2011 10:28:49
      地值钱没错,但如果是自住,就不能买太旧的。否则买来住10年,地是升值了,但闻10年的霉气,还要打理个大花园,受罪啊!回头你会发现原来房子也很值钱!
      回复 支持 反对

      使用道具 举报

      6
       楼主| 游泳圈 发表于 18-8-2011 00:40:11
      爱美食 发表于 2011-8-18 00:24
      我也觉得贵了点,,,,主要是地小啊,,..房子新旧其次,,,,,在那地方今年我看得那地方的一块地,,700左右也就23万 ...

      好的,那我冷静冷静
      回复 支持 反对

      使用道具 举报

      7
      heatherchun 发表于 18-8-2011 20:25:19
      我也觉得地小了,楼主冷静啊,不要看到新就什么都不顾了
      回复 支持 反对

      使用道具 举报

      8
      LeeDC 发表于 18-8-2011 22:09:47
      提示: 作者被禁止或删除 内容自动屏蔽
      回复 支持 反对

      使用道具 举报

      您需要登录后才可以回帖 登录 | 注册

      本版积分规则

      其他网友还看了 ...

      Copyright @ 2022 AdelaideBBS.com. All rights reserved. User Agreement

      客服号

      公众号