| 微信 : Adelaidehelp 联系邮箱 : [email protected] 开启辅助访问
  • 【Harcourts美家】Clarence Park · Cross Road 三卧一 ...

    浏览人气 : 2131
    284A Cross Road, Clarence Park, SA 5034 Property Number : 1606946 价格 : $700/周 3 1 2

    Alex

    联系方式 :
    0435 274 469

    看房时间

    看房时间1 :

    看房时间2 :

    地理位置
    打印 上一主题 下一主题

    【Harcourts美家】Clarence Park · Cross Road 三卧一卫一车库整租

    [复制链接]

    本内容为网友发布信息,仅代表原作者观点,不代表本平台立场。

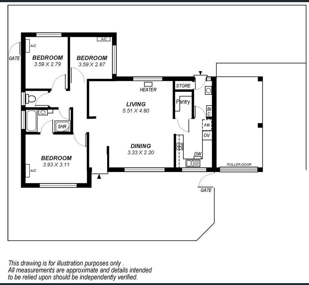
    位于 Clarence Park 核心地段 Cross Road,地理位置优越,距离阿德莱德市中心不足 5 公里。
    过马路即是大型商场,包含 Woolworths、麦当劳 等生活配套,购物、餐饮、交通一应俱全,生活便利又舒适。

    房屋配置
    三间卧室,每间卧室均配备冷暖空调
    开放式厨房,配备燃气灶、洗碗机、烤箱及充足储物空间
    木地板 + 中性装修,干净明亮,易打理
    独立洗衣区,可直通后院
    1 个车库 + 额外 1 个车位
    无家具整租,可提供 冰箱和洗衣机
    租金:$700 / 周(不含家具)可入住日期:2026 年 2 月 17 日起

    有意请联系Alex





    4.jpg (112.91 KB, 下载次数: 107)

    4.jpg

    5.jpg (79.78 KB, 下载次数: 106)

    5.jpg

    BBS提醒: 请避免提前支付订金、押金等任何费用,请与对方当面沟通,确认资质并看清条款。谨防上当受骗。

    免责声明: 本网站所提供的信息,只供参考之用。本网站不保证信息的准确性、有效性、及时性和完整性。本网站及其雇员一概毋须以任何方式就任何信息传递或传送的失误、不准确或错误,对用户或任何其他人士负任何直接或间接责任。在法律允许的范围内,本网站在此声明,不承担用户或任何人士就使用或未能使用本网站所提供的信息或任何链接所引致的任何直接、间接、附带、从属、特殊、惩罚性或惩戒性的损害赔偿。

    收藏收藏 顶 踩
    回复

    使用道具 举报

    您需要登录后才可以回帖 登录 | 注册

    本版积分规则

    其他网友还看了 ...

    Copyright @ 2022 AdelaideBBS.com. All rights reserved. User Agreement

    客服号

    公众号