| 微信 : Adelaidehelp 联系邮箱 : [email protected] 开启辅助访问
  • 本版置顶

      打印 上一主题 下一主题

      [房产投资] Off Market Sale 海

      [复制链接]
      跳转到指定楼层
      楼主
      果子100 发表于 20-5-2024 16:09:17 来自手机 转发到朋友圈 删帖
      9303 0

      本内容为网友发布信息,仅代表原作者观点,不代表本平台立场。

                            Off Market Sale
      海滨绝佳机会,全尺寸地块,投资或自住!
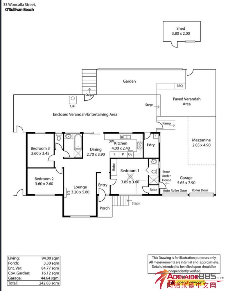
      33 Woocalla Street, O'sullivan Beach, SA 5166

      无论您是在寻找投资物业还是自己居住的好房子,这处房产都能满足您的所有需求!这套位于O'Sullivan Beach的3居室住宅潜力巨大,适合各类买家。

      这处房产的出售信息目前还没有上市,这是一个绝佳的机会,可以在这个备受追捧的海滨郊区,以极其优惠的价格,获取一套3卧室的房屋。这处房产距离海滨和高级船只下水设施仅几分钟的路程,几分钟即可到达公交车站和当地商店,Noarlunga中心和主要购物区也都在近距离范围内。位于约733平方米的地块上,这个三卧室的家庭住宅有很多优点,并有可能进行分割开发(需经相关部门批准)。

      房屋特点包括三个宽敞的卧室,主卧配有内置衣柜、吊扇和套间浴室,明亮的客厅区域配有分体式空调,时尚的厨房和用餐区配有充足的橱柜空间和优质电器,包括燃气灶和洗碗机,主浴室设有全尺寸浴缸和淋浴,大型封闭式全天候娱乐区配有燃气加热器——非常适合全年娱乐使用,宽敞的后草坪为孩子和宠物提供了充足的玩耍空间,双车棚配有卷帘门,还有一个单独的棚屋,适合作为储藏室。

      一个巨大的封闭娱乐区配有燃烧加热器和内置烧烤设施,旁边是一个凉棚区,完美地完善了这个整洁的家。

      价格合理!抓紧时间抢购这个难得的机会!

      出售区间价:$600,000-$650,000

      目前该房产已出租给长期租户,租期至2024年8月初。欲了解更多详情并获取最新的租金评估,请联系Semi Huang,电话:0413 246 253,或发送电子邮件至[email protected].

      BE900794-7EA3-462F-BBDD-DFA66E1CC955.jpeg (54.76 KB, 下载次数: 607)

      BE900794-7EA3-462F-BBDD-DFA66E1CC955.jpeg

      E1374003-B913-4E29-BC64-B4DB440D0603.jpeg (122.3 KB, 下载次数: 666)

      E1374003-B913-4E29-BC64-B4DB440D0603.jpeg

      05667B9D-CD29-4BE2-8E47-6376F77E4703.jpeg (114.68 KB, 下载次数: 614)

      05667B9D-CD29-4BE2-8E47-6376F77E4703.jpeg

      1E98AE45-FD8E-4A6A-802F-5A449AE094A1.jpeg (66.96 KB, 下载次数: 660)

      1E98AE45-FD8E-4A6A-802F-5A449AE094A1.jpeg

      1A169FA3-503B-4F49-A9E5-F0280F615747.png (104.01 KB, 下载次数: 647)

      1A169FA3-503B-4F49-A9E5-F0280F615747.png

      7770D2BE-5554-45BA-A961-914F74DE377C.jpeg (82.9 KB, 下载次数: 610)

      7770D2BE-5554-45BA-A961-914F74DE377C.jpeg

      727D02BE-542D-4736-A421-E024DE0D7DBC.jpeg (51.78 KB, 下载次数: 633)

      727D02BE-542D-4736-A421-E024DE0D7DBC.jpeg

      7774EC81-3D11-46A7-9720-4CA7CA65066A.jpeg (65.36 KB, 下载次数: 655)

      7774EC81-3D11-46A7-9720-4CA7CA65066A.jpeg

      5DD877E1-D4A0-4CCB-9E5D-057C1FDE4AFF.jpeg (72.67 KB, 下载次数: 617)

      5DD877E1-D4A0-4CCB-9E5D-057C1FDE4AFF.jpeg

      70DD8EA6-234B-4462-920B-8A754E6623C9.jpeg (136.57 KB, 下载次数: 639)

      70DD8EA6-234B-4462-920B-8A754E6623C9.jpeg

      D87FB0F5-033D-4B7C-93DD-0E1DE1A82534.jpeg (58.91 KB, 下载次数: 619)

      D87FB0F5-033D-4B7C-93DD-0E1DE1A82534.jpeg

      386AB466-68BC-4419-8DC6-604A6DAE2C7A.jpeg (71.68 KB, 下载次数: 629)

      386AB466-68BC-4419-8DC6-604A6DAE2C7A.jpeg

      09A2AD44-DA22-4EB7-BA07-0F8CCA1059ED.jpeg (67.99 KB, 下载次数: 608)

      09A2AD44-DA22-4EB7-BA07-0F8CCA1059ED.jpeg

      9342AB2B-244F-4BE9-9CDD-15B7C5DDA745.jpeg (60.5 KB, 下载次数: 616)

      9342AB2B-244F-4BE9-9CDD-15B7C5DDA745.jpeg

      65D1CFDF-2610-45E3-97C1-B31686707C28.jpeg (103.63 KB, 下载次数: 639)

      65D1CFDF-2610-45E3-97C1-B31686707C28.jpeg

      3FBD67C0-C1F1-4220-928E-262AAC2A1BEC.jpeg (114.22 KB, 下载次数: 615)

      3FBD67C0-C1F1-4220-928E-262AAC2A1BEC.jpeg

      71DFB4DC-89FB-485C-B050-4316885D741D.jpeg (113.26 KB, 下载次数: 608)

      71DFB4DC-89FB-485C-B050-4316885D741D.jpeg

      EDBB581C-F07C-4055-97EB-D89532C837FA.jpeg (125.49 KB, 下载次数: 631)

      EDBB581C-F07C-4055-97EB-D89532C837FA.jpeg

      25D9AA31-F457-4454-921E-0BE01C05E74B.jpeg (120.98 KB, 下载次数: 616)

      25D9AA31-F457-4454-921E-0BE01C05E74B.jpeg

      8C708969-29D2-48BB-B6E4-DAF10F566669.jpeg (139.4 KB, 下载次数: 644)

      8C708969-29D2-48BB-B6E4-DAF10F566669.jpeg

      BBS提醒: 请避免提前支付订金、押金等任何费用,请与对方当面沟通,确认资质并看清条款。谨防上当受骗。

      免责声明: 本网站所提供的信息,只供参考之用。本网站不保证信息的准确性、有效性、及时性和完整性。本网站及其雇员一概毋须以任何方式就任何信息传递或传送的失误、不准确或错误,对用户或任何其他人士负任何直接或间接责任。在法律允许的范围内,本网站在此声明,不承担用户或任何人士就使用或未能使用本网站所提供的信息或任何链接所引致的任何直接、间接、附带、从属、特殊、惩罚性或惩戒性的损害赔偿。

      收藏收藏 顶 踩
      回复

      使用道具 举报

      您需要登录后才可以回帖 登录 | 注册

      本版积分规则

      其他网友还看了 ...

      Copyright @ 2022 AdelaideBBS.com. All rights reserved. User Agreement

      客服号

      公众号